|
1836| 2
|
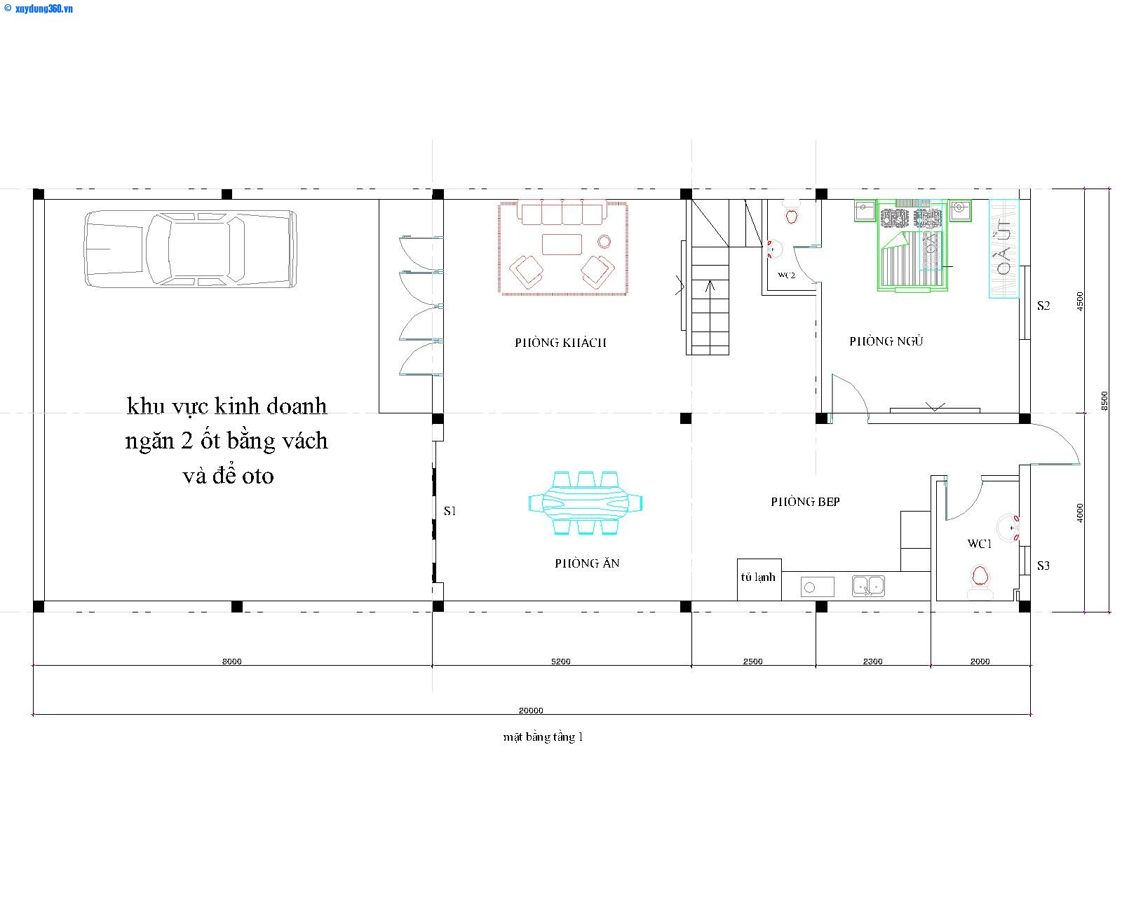
[Chuyên về Nhà dân] [Hỏi] cách bố trí công năng nhà? |
| ||
|
www.xaydung360.vn XÂY TÂM, DỰNG TẦM CHUYÊN NGHIỆP |
||
| ||
|
www.xaydung360.vn XÂY TÂM, DỰNG TẦM CHUYÊN NGHIỆP |
||
| ||
|
www.xaydung360.vn XÂY TÂM, DỰNG TẦM CHUYÊN NGHIỆP |
||
Phiên bản Mobile|Phần mềm ôn thi sát hạch chứng chỉ hành nghề xây dựng

Phần mềm dự toán xây dựng excel | Hướng dẫn lập dự toán xây dựng | Phần mềm tư vấn giám sát | Phần mềm quản lý chất lượng xây dựng |
Phần mềm ôn thi sát hạch chứng chỉ hành nghề xây dựng
Phần mềm luyện thi sát hạch chứng chỉ hành nghề xây dựng
Phần mềm luyện thi sát hạch chứng chỉ hành nghề Kiến Trúc sư
GMT+7, 11/12/2025 16:54 , Processed in 0.085567 second(s), 25 queries .
Powered by Discuz! X3.2
© 2001-2013 Kiso Comsenz Inc.